Alles im Grünen – Wohnbau Gießhübl

WOHNBAU · NEUBAU · PASSIVHAUS

Alles im Grünen

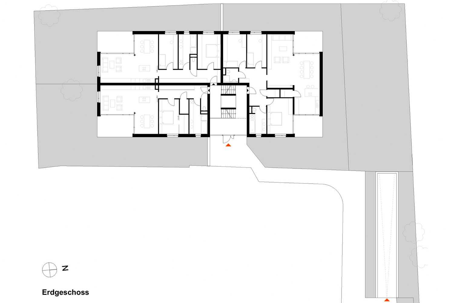
Projekt Wohnbau, 8 Wohneinheiten
Ort 2372 Gießhübl, NÖ
Status Realisierung
Fotografie KITO photography – Michael Baumgartner

„Ein energetisch optimierter Baukörper, der auf Standort- und Lagequalität reagiert."

Der Neubau ist in Passivhausbauweise (EKZ <10 kWh/m²a) als ökologisch energetisch kompakter Baukörper ausgeführt. Die Aufschließung erfolgt von Osten über die Urlaubskreuzstraße und nutzt die Topographie für eine unterirdische Garagenlösung und Baukörpereinpassung mit geringer Geländekorrektur.

Die horizontale Gliederung der Gebäudelängsseiten in Regelgeschosse und dem abgesetzten Dachgeschoss sowie die Zweiteilung des Baukörpers durch Höhenstaffelung und Stiegenhaus-Zäsur reagieren auf Struktur und Proportion der Nachbarschaft und die lokale Maßstäblichkeit im Quartier. Der Baumbestand entlang der Grundgrenzen Nord und West wurde weitgehend beibehalten.

Die optimierten Bauteilaufbauten mit einer bewusst zur Sonne gesetzten Befensterung bilden eine energetisch optimierte Großform, die auf Standort- und Lagequalität reagiert und eine zeitgemäße Wohnform mit hoher Freiraumqualität widerspiegelt.