Generationenwohnen Perchtoldsdorf

WOHNBAU · NEUBAU · ENERGIEEFFIZIENT

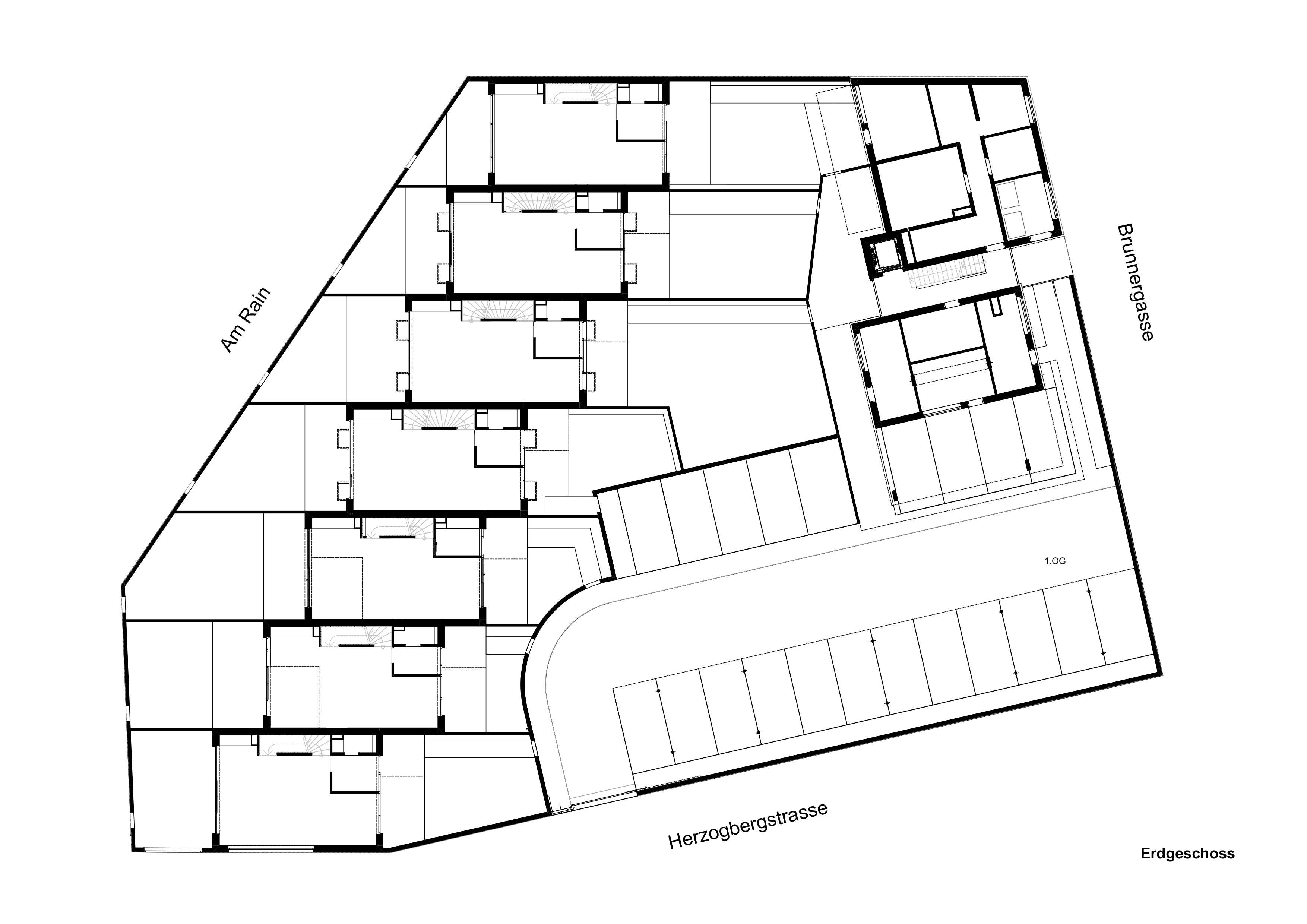
Generationenwohnen

Projekt 7 Reihenhäuser und 4 Wohnungen
Ort Perchtoldsdorf, Niederösterreich
Status Realisierung
Fotografie R. Strobl

„Eine Großform als Blockrand – gestaffelt, durchlässig und gemeinschaftlich."

Sieben gestaffelte Reihenhäuser mit individuell vorgelagerten Freibereichen und ein barrierefrei ausgewiesenes Mehrfamilienhaus werden zusammen mit einem Carport und einer säumenden Gartenmauer zu einer Großform als „Blockrand" gefügt.

Eine über die Südost-Ecke geführte Baumreihe hat straßenraumbildende Wirkung bei gewünschter Durchlässigkeit gegen Süden. Alle Einheiten weisen eine mehrseitige Belichtung auf und haben individuell vorgelagerte Freibereiche als Vorgarten, Terrasse oder Balkon.