Große Geste – Wohnhausanlage Tulln

WOHNBAU - NEUBAU - ENERGIEEFFIZIENT

Große Geste

Projekt12 Wohnungen
OrtTulln, Niederösterreich
StatusRealisierung
FotografieKITO photography – Michael Baumgartner

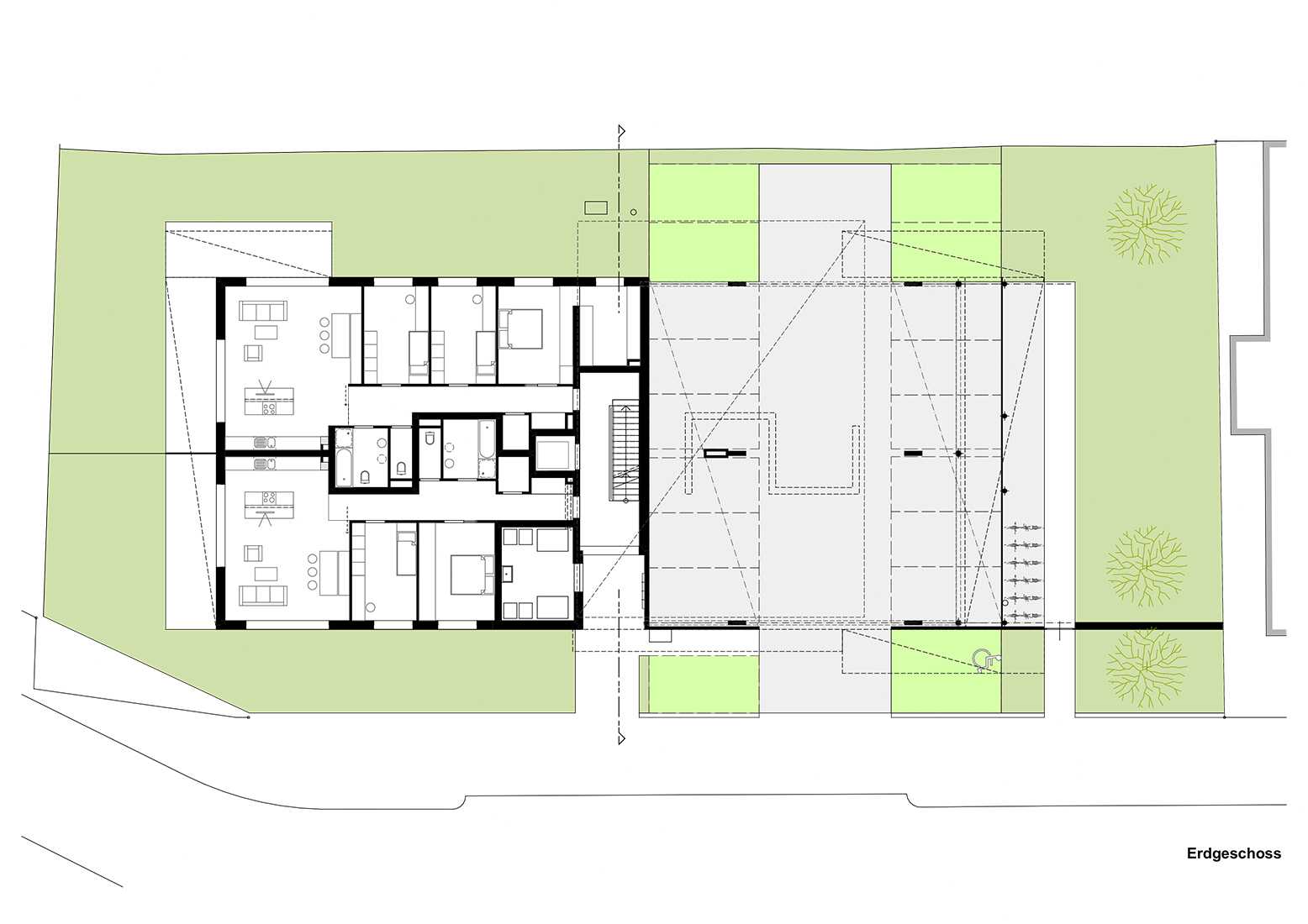
Neubau einer Wohnhausanlage, bestehend aus 3 Hauptgeschossen und einem Dachgeschoss. Der bestehende Keller wird weitestgehend beibehalten, die restlichen Baulichkeiten rückgebaut. Insgesamt sind 12 Wohneinheiten ausgewiesen. Die Wohnungen sind durch ein zentrales Stiegenhaus, barrierefrei, als Vierspänner, aufgeschlossen.

Die Fahrräder erfahren eine alltagstaugliche und benützerfreundliche Aufstellung zu ebener Erde. Die sonstigen vorgelagerten Freiflächen sind als individuelle Gartenflächen und als Kinderspielbereich genutzt.

Die Verordnung „Bebauungsplan 1994" der Stadt Tulln und die darin gelisteten Forderungen definieren weitestgehend Baukörperstellung und Gliederung / Bauform der Anlage. Die Zäsuren mit Staffelung, abgesetzten Dachgeschossen, Balkonen und Gaupen reagieren auf Struktur und Proportion der Nachbarschaft und die lokale Wohn-Maßstäblichkeit im Quartier.

Alle Wohnungen weisen eine mehrseitige Belichtung auf, sind mit Fenstern an der Gebäudeecke querlüftbar und haben individuell vorgelagerte Freibereiche als Garten, Terrasse oder Balkon.

Lagerräumlichkeiten sind bedarfsgerecht im Wohnungsverband und / oder als UG-Kellerabteile ausgewiesen. Die Grundrissgestaltung mit hochwertiger Materialisierung und bewusstem Farbkonzept unterstreichen den Optimierungsgedanken, der im Niedrigstenergiehausbau / Passivhausbau Grundstein ist.