Volksschule als Holzbau

SCHULBAU - HOLZBAU - NACHHALTIG

Symbiose von Alt und Neu

ProjektZu- und Umbau der Volksschule
OrtMoosbrunn, Niederösterreich
StatusRealisierung
FOTOGRAFIEChriistian Postl, Johann Kopf
AUSZEICHNUNGWettbewerb 1. Preis (2020)
PUBLIKATIONa-plus.at  Holzmagazin 12/2024  nextroom  ig-Architektur  MMK  holzbetonverbund.at

„Ressourcenschonendes und nachhaltiges Handeln bedingt vorhandene Strukturen zu nutzen“.

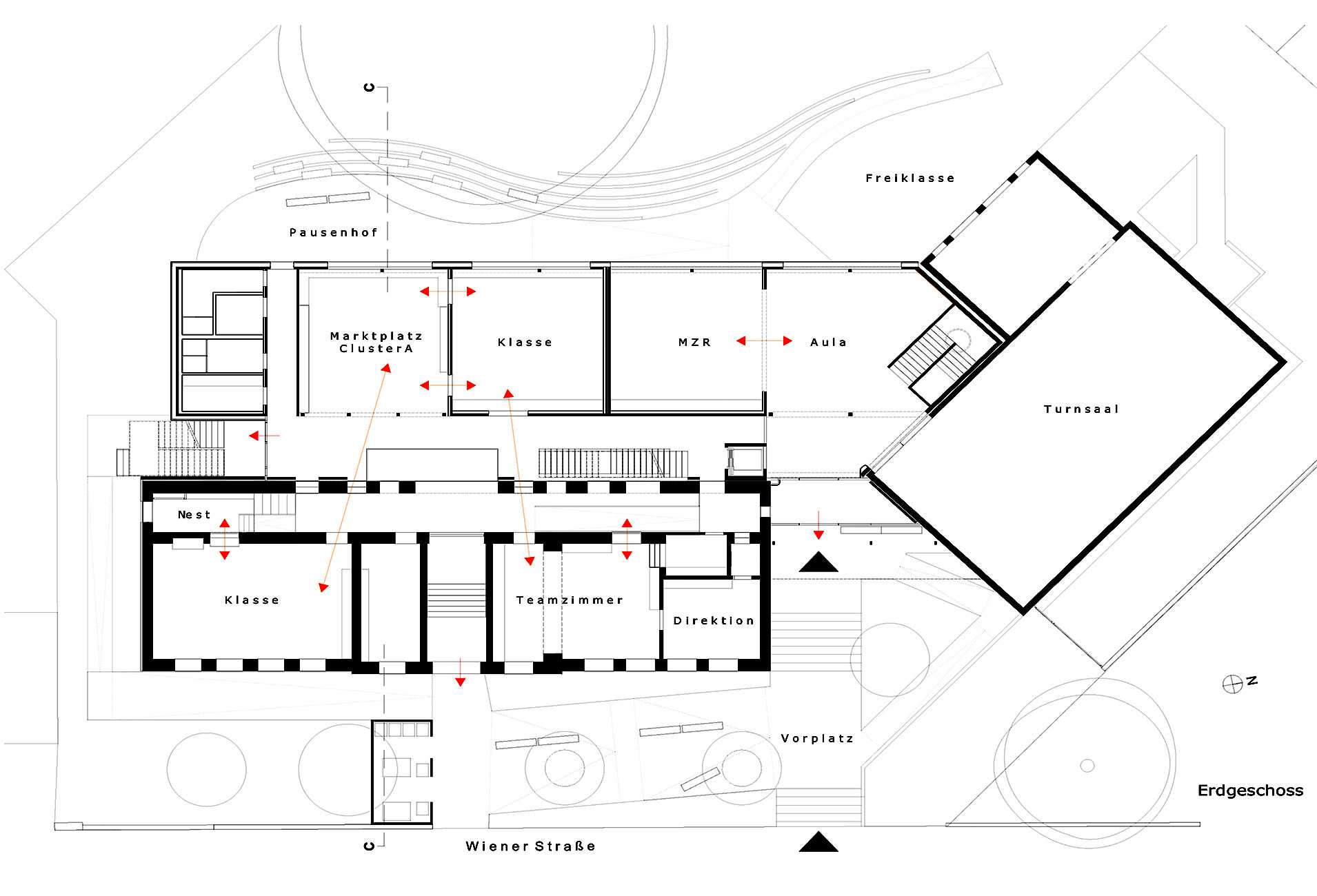
Die historische Volksschule Moosbrunn prägt das vertraute Bild der Wienerstraße. Bei der Adaptierung und Erweiterung des Bestandes steht heimisches Holz (Brettsperrholzbauweise) im Vordergrund. Zwischen alter Schule und bestehendem Turnsaal aus dem Jahr 1995 wird ein neuer Hauptzugang geschaffen. Eine barrierefrei geneigte Zugangsebene als Vorplatz und Pufferbereich zur Wienerstraße, ein wettergeschützter Wartebereich und ein Windfang mit Vordach in Holz kennzeichnen das neue Entree der Gesamtanlage.

Die neue Schulerweiterung ist gartenseitig angelagert und steht in respektvoller Symbiose zum Altbestand. Qualitätsvolles aus dem Bestand wird übernommen, Neues steht für zeitgemäßes Weiterbauen. An der Nahtstelle zwischen Massiv- und Holzbau (Alt- und Neubau) schaffen Lichtbänder, Lufträume und Kaskadentreppe Großzügigkeit und Transparenz. Viel natürliches Licht sorgt für gute Lichtverhältnisse und interessante Innen-Außen-Bezüge, vor allem die Blickbeziehung auf die 100-jährige Eiche im Schulgarten.

Der dreigeschossige Neubau besteht aus einem massiven Gartengeschoss und zwei Obergeschossen in Holzmassivbauweise mit silbrig schimmernder Holzfassade. Horizontale Linien durch Fassadentrennbleche im Gegensatz zur vertikalen Holzschalung prägen das Fassadenbild des Neubaus. Integrale Planung, überwiegend trockene Bauweise und Vorfertigung machen eine schnelle Bauzeit realisierbar. Ziel war einerseits möglichst viel Holz im Inneren sichtbar zu lassen, andererseits dabei Schallschutz, Akustik, große Spannweiten (Verwendung von Holz-Beton-Verbunddecken) zu berücksichtigen und eine gute und behagliche Lernatmosphäre zu gewährleisten.

a-plus Architekten
Waltraud Schnetzer-Mörk, Günter Schnetzer